Et hus i landskabelige omgivelser

Projekttype: Renovering, tilbygning og landskabsbearbejdning Sted: Gistrup Størrelse: 15.000 kvm En familie bor i de smukkeste, naturrige omgivelser. Deres nuværende bolig giver en række udfordringer i hverdagslivet. De har et stort behov for flere kvadratmeter i deres hjem, samt en bedre forbindelse imellem rummene. Desuden ønsker familien en bedre sammenhæng mellem deres hjem og det omkringliggende landskab, så arkitekturen fremhæver og integrerer naturen. Vi har derfor skitseret både på husets form og indretning, samt udeområdet.
Boligens eksisterende kvadratmeter skal udnyttes bedst muligt, samtidig med at der skal bygges til.
Nedenfor ses den endelige planløsning, og efterfølgende kan I læse nærmere om vores proces og de indledende 3 skitseforslag.
Den eksisterende plantegning
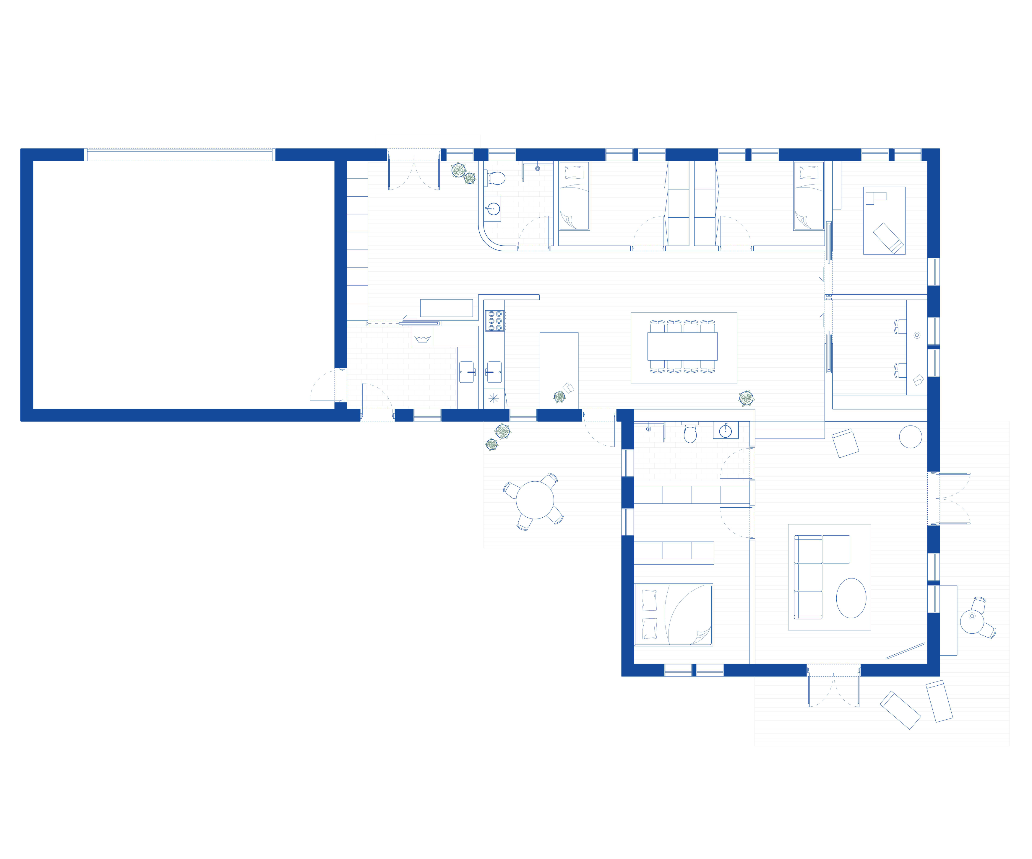
Den endelige plantegning


Den eksisterende planløsning har mange udfordringer, da den både er kringlet og inddelt i mange små rumligheder trods de få kvadratmeter. Familien på 4 har kun 1 soveværelse til deling samt to små leverum: stue og køkken.
Bryggers mod øst og laden mod syd tager mange værdifulde kvadratemeter fra hjemmet.
Den endelige plantegning tilbyder gode værelser, sammenhænge mellem inde- og uderum, samt et stort, lys og indbydende leverum. Laden mod syd er faldefærdig, og erstattes med en moderne tilbygning, der skaber forbindelse mellem haven og huset.
Skitseforslag 1: symmetrisk arkitektur


I dette skitseforslag er der skabt et uderum på naturens præmisser, med minimal programmering af haven. Haven er designet til at lade naturen udfolde sig frit i store, åbne områder.
Bygningen og landskabet står i stor kontrast til hinanden. Det vilde møder det byggede. Den bølgende træterrasse er med til at skabe en overgang mellem ude og inde, og tilfører blødhed og varme til bygningens ellers stringente linjer.
Tilbygningens placering giver huset en symmetrisk arkitektur, som bliver en rolig kontrast til det vilde landskab.
Husets planløsning byder på åbne og lyse rum med køkkenalrummet som husets kerne. Derudover er har boligen en børneafdeling og en forældreafdeling. Husets fællesrum har adgang og udsyn til terrassen og haven, og inviterer således naturen ind i hjemmet.
Skitseforslag 2: L-formen


Uderummene er en harmonisk forlængelse af husets arkitektur gennem skarpe, lige linjer, som gradvist opløses til mere naturlige og organiske former, i takt med at man bevæger sig længere væk fra huset.
Tilbygningens placering understøtter husets simple arkitektur. Bygningen skaber en tydelig forside, og indrammer grunden bagtil. Hjemmet byder på en praktisk planløsning med kant og personlighed.
Skitseforslag 3: den moderne tilbygning


Et tydeligt og skarpt greb, hvor naturen og det bebyggede står i stor kontrast til hinanden. Uderummet er designet ud fra et "grid", som det bebyggede underligges, hvilket skaber en tydelig differentiering mellem det anlagte og det naturlige. I mellemrummene får naturen lov til at udfolde sig, og bliver således iscenesat og prioriteret.
Det anlagte udendørsareal er designet med en tydelig koncentration omkring huset og opløser sig gradvist, jo længere ned gennem haven man bevæger sig.
Tilbygningen har samme form som det eksisterende hus, og er placeret forskudt mod haven. Tilbygningen ligger et niveau længere nede end huset, og 'trykker sig' ned i landskabet. Den er tiltænkt som et moderne modspil til huset, der åbner sig op mod haven, og det flade tag giver tilbygningen en ydmyg karakter.
Boligen har en praktisk planløsning, der samtidig er original og spændende. Fra entréen er der skabt en unik akse hele vejen igennem huset og ud til haven.